MF200

Mounting Frame for Bi-level In-wall Refrigerated Coolers

ADA No
Installation Location Indoor
Application Hospitality
Type Mounting Options
Material Galvanized Steel
Finish Galvanized Steel
Number of Stations 2
Mounting Type Wall Mount (In-Wall Frame/Plate)
Included with Product Mounting Frame Assembly
Country Of Origin USA
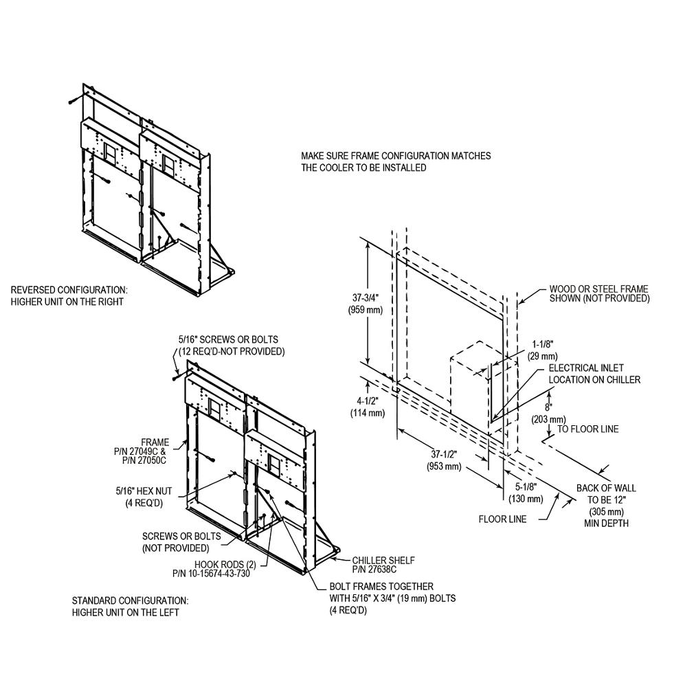
Dimensions L: 37-1/2"
W: 12"
H: 37-3/4"
Shipping Dimensions L: 19"
W: 9"
H: 46"
Shipping Weight 32 LBS
Note For use with Elkay ENOB, ERFP, ERO, ERPB, LNTE, LRPB refrigerated bi-level models.

We carry a range of mounting frames, plates and other installation support systems to properly position and enhance our refrigerated and non-refrigerated bottle filling stations, water coolers, drinking fountains and chillers of all configurations.

  • Two-station mounting frame enables installation of in-wall drinking water models
  • Compatible with various Elkay® refrigerated models; see specifications tab for details
  • Mounting frame included with specific SwirlFlo® and Soft Sides® models
  • Secures directly to a variety of load-bearing surfaces
  • Refer to end product for ADA compliance information
  • Built in the USA