LVRCDMWSK

ezH2O® Vandal-Resistant Bottle Filling Station & Single Fountain Filtered Non-Refrigerated Stainless

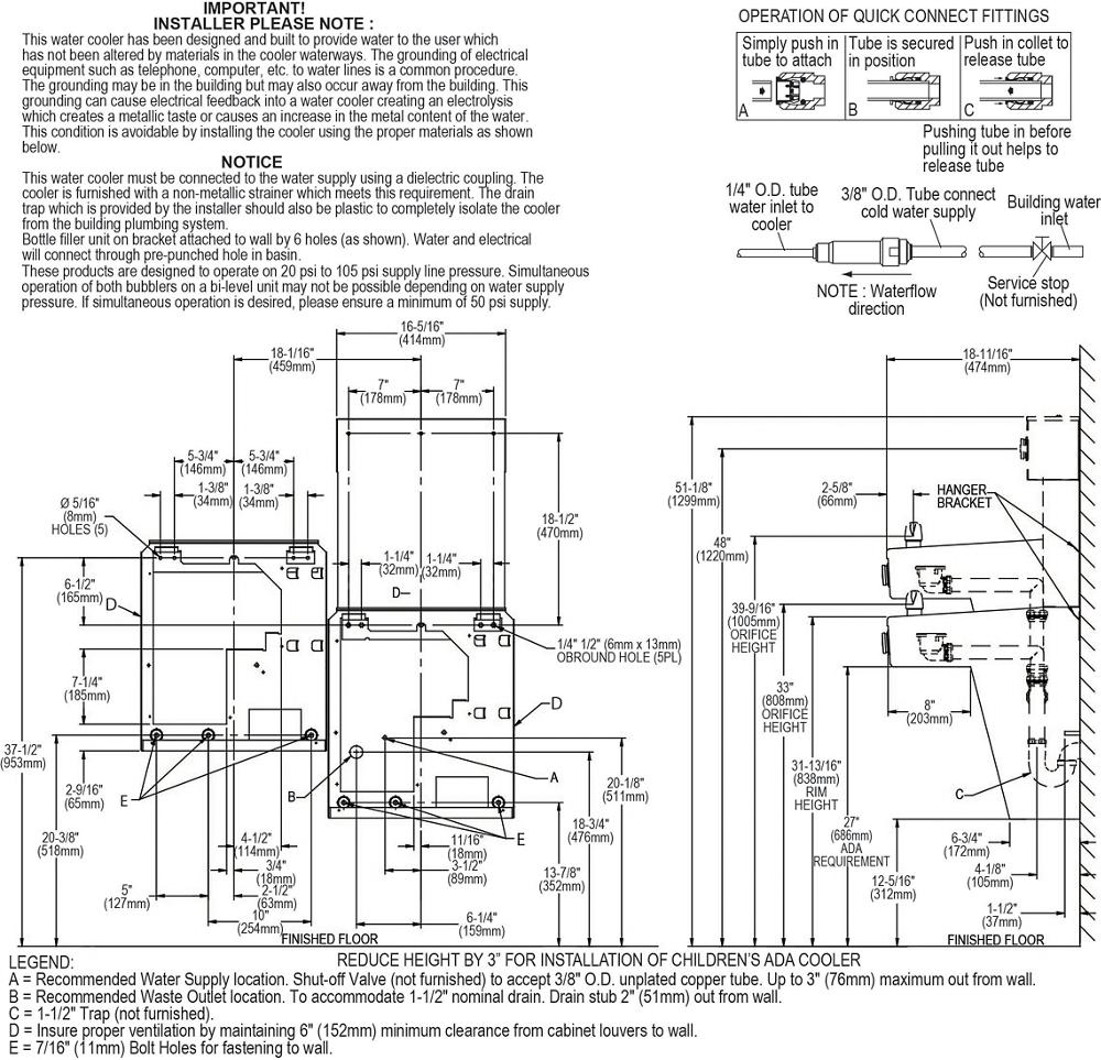
ADA Yes
Installation Location Indoor
Power No Electrical Required
Material Stainless Steel
Finish Stainless Steel
Features Filtered
Laminar Flow
Real Drain
Vandal Resistant
Number of Stations 1
Bubbler Style Vandal Resistant
Filtered Yes
Chilling Capacity Non-refrigerated
Mounting Type Wall Mount (On Wall)
Included with Product Water Fountain (LVRCDWS)
Bottle Filler (VRCMWS)
Filter
Ships In Multiple Boxes Yes
Country Of Origin USA
Dimensions L: 18"
W: 18-5/8"
H: 38-13/16"
Shipping Dimensions L: 22-3/4"
W: 30-3/4"
H: 26-3/16"
Shipping Weight 89 LBS
Note When used in non-temperature-controlled environments, unit(s) must be adequately winterized and/or protected from extreme heat to prevent damage where climates dictate. The filters are certified for water temperatures up to 100°F.
Code Compliance ASME A112.19.3/CSA B45.4
NSF 42
NSF 53
NSF 401
UL 399
NSF 61
NSF 372

The Elkay EZH2O® Bottle Filling Station delivers a clean quick water bottle fill and enhances sustainability by minimizing our dependency on disposable plastic bottles. Vandal-resistant fountain and bottle filling station in a consolidated space saving ADA compliant design. Pushbutton activation

  • Ideal for heavy-use installations such as educational and recreational facilities
  • Mechanical, vandal-resistant push button design, for areas where electric is not available
  • Stainless steel construction withstands abusive environments and resists stains
  • Tamper-resistant fasteners help protect against vandalism
  • Vandal-resistant bubblers feature chrome-plated integral hood guard to prevent contamination from other users, airborne deposits and tampering
  • The 3,000-gallon filter is tested and certified to NSF/ANSI 42 and 53 to reduce lead, cysts, Class 1 particulate, and chlorine taste and odor
  • Fill rate is 1.0 GPM
  • Rated for indoor or outdoor use
  • Rated for indoor use only